目录
建筑防火设计规范

10.3.5 条文

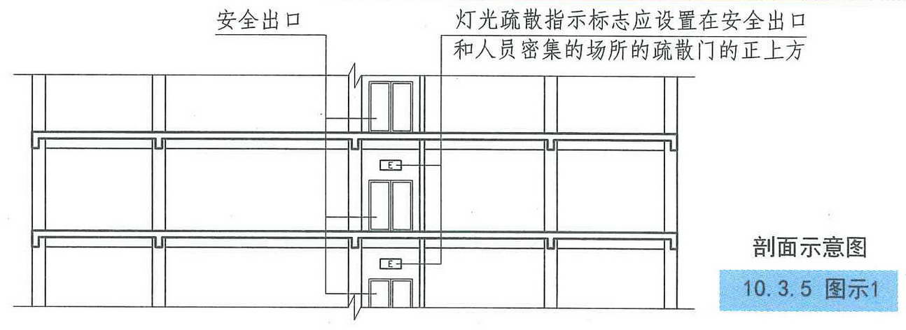
  公共建筑、建筑高度大于54m的住宅建筑、高层厂房(库房)和甲、乙、丙类单、多层厂房,应设置灯光疏散指示标志,并应符合下列规定:

    1  应设置在安全出口和人员密集的场所的疏散门的正上方。

    2  应设置在疏散走道及其转角处距地面高度1.0m以下的墙面或地面上。灯光疏散指示标志的间距不应大于20m;对于袋形走道,不应大于10m;在走道转角区,不应大于1.0m。

10.3.5 解释

暂无

10.3.5 图示

10.3.5图示1
        2 应设置在疏散走道及其转角处距地面高度1.0m以下的墙面或地面上。灯光疏散指示标志的间距不应大于20m;对于袋形走道,不应大于10m;在走道转角区,不应大于1.0m。【图示2】
10.3.5图示2